上 海 谷 辰 装 饰

干净硬朗现代风,平衡感性与理性的氛围感

15
发表时间:2023-12-14 11:15作者:谷辰设计


GU CHEN

The story behind it

   

     本期分享的屋主是一位自由职业者,生活风格简洁利落,日常对于饮食颇有研究,爱好在周末休息日做上一桌佳肴静静享用,将生活经营得充实而有趣味,本套主要用于居住的公寓整体设计风格契合了屋主的偏好,大胆的对房屋进行了采光改良,硬朗的直线条在家中随处可见,时刻彰显着主人的利落与干脆。


灵感源于密斯·凡德罗的空间美学,传递细腻的艺术美感

秉持“少即是多”的设计哲学,给居者带来唯美的生活享受


     本案整体以象牙白和暖米色作为主色调,金色和棕色为房间增添贵气精致,小面积的运用在桌椅等家具上,设计上做有效减法,用隐框门设计让墙面视觉效果整洁统一,增加视觉通透感,描摹着屋主心中理想居所的模样,每一帧设计,都源于对生活的热爱以及居者生活习惯的需求,在喧闹的都市中,找到自己的舒适与自在。


01客厅

「利落纯粹,干练简约」

阳台的洗晒空间合理规避,洗手盆和洗衣机隐到承重墙和柜体后面,从客厅望去不可见,更加美观,同时用轻盈的白色纱帘作为窗帘,保证采光又有隐私性,空间格调统一美观,视野更通透,给人大气愉悦的家居享受。

分考虑屋主的职业特色,去掉了传统的电视柜,取而代之的是IT从业者必备的电脑工作台,台面下方做镂空设计,做成两层的书架,千鸟格纹的靠背椅,以增加这一温馨空间的设计感。


02餐厅

「交互空间,恰到好处的舒适高级」

房与玄关相连通,进门处考虑到入户的隐私和美观,用精致的墨绿大理石纹岛台与餐桌做衔接,上置写意的插花与黄色吊灯,像一幅画般给整个空间带去诗意与雅致。

室采用隐框门,避免了尴尬,提升生活的舒适度。

关侧用半腰高的橱柜做收纳,上半部分采用浅灰大理石纹作为墙贴,中和了空间的单调,满足主人的储物需求,弥散出着高级质感。


03厨房

「直线型空间,行动便捷,乐趣无穷」

白经典配色橱柜,耐看而不易过时,目光所到之处,皆为收纳,充分利用家居空间,完美划分烹饪、切洗、烘培、冷储、储物功能区,丰富的收纳柜,物品摆放更整齐,让居者快速找到物品,享受到厨房的乐趣。

柜和操作台做直线型设计之外,余下的空间全部作为活动区域,宽敞舒适,让备餐更加愉悦。


04卧室

「舒适静谧,精致释压」

室同样考虑隐私性和美观采用隐框门,同时与次卧进行隔断,提升了次卧的采光,以象牙白作为主色,宽大的飘窗让阳光充分铺在床上,温暖而安逸。

色台灯增添了整个空间的动感与活泼,凸显时尚家居氛围,更符合现代年轻屋主的审美。

卧墙面是实用的落地式衣柜,床头的高度做嵌入式挖空设计,将精致与个性实用融为一体,舒适的榻榻米设计搭配绿色和淡粉的抱枕,为居者打造宁静温暖的舒睡空间。


05浴室

「华而亦实,美感与实用兼得」

边隐框门,简约而有格调,几何水滴形镜子与窄窄的百叶窗、低矮的盆栽上开着白色花朵,房间的一角,竟有清新的秘密空间,洗漱台下方是收纳筐,便于主人随手放置用品。


06户型设计

「设计改动」

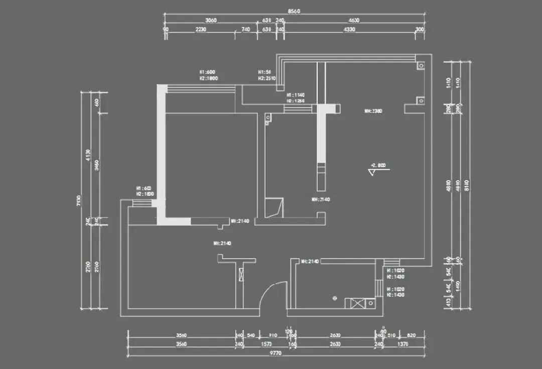
△原始户型图


△平面布置图


1. 由于厨房与玄关在同一空间,因此增加了一个岛台,与餐桌相连,对墙面进行挖空设计增加采光,玄关墙面做半腰高落地收纳柜,既改良采光,又增加了收纳

2. 用半墙做隔断,重新划分住宅功能分区

3. 整改厨房动线,房间一分为二,直线型操作台和直线型活动区域完美契合屋主要求,在视觉上也更显宽阔

4. 原户型进门便能看见浴室门,因此此次采用了隐框门,更有隐私,提升生活舒适度


07现场花絮

「保质量,建精品」


08项目信息

「设计说明」


-

中国 上海|项目地点

Project location

锦绣前城|项目小区

Project housing estate

谷辰设计|设计团队

Design team

家 装|项目类型

Project type

80㎡|项目面积

Project area

01/2023|设计时间

Design time

-


社交媒体

「SOCIAL MEDIA」

热文推荐

「POPULAR ARTICLE RECOMMENDATION」

分享到: